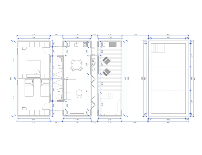
Casa Campo III
Proyecto de casa de campo desarrollado en una sola planta, organizado a partir de una distribución funcional que integra dormitorios, servicios y un área social central con conexión directa hacia terrazas exteriores y zona de piscina. La propuesta prioriza la relación entre interior y exterior, el uso de espacios abiertos, la iluminación natural y una circulación clara, pensada para el descanso y el uso recreativo.




